Valutazione di Impatto Ambientale (VIA) scavo Contorta: le nostre osservazioni.
Al Ministero dell’Ambiente e della Tutela del Territorio e del Mare
Direzione Generale per le Valutazioni Ambientali – Divisione II Sistemi di Valutazione Ambientale
Via Cristoforo Colombo 44,
00147 Roma
Oggetto: Osservazioni urgenti sul progetto preliminare denominato “adeguamento via acquea di accesso alla stazione marittima di Venezia”, presentato dall’Autorità Portuale di Venezia, di cui alla comunicazione di avvio della procedura di valutazione di impatto ambientale pubblicata in data 17 settembre 2014.
A titolo preliminare, i sottoscritti rilevano come il termine assegnato per la presentazione delle osservazioni sul progetto in epigrafe (30 giorni) rappresenta una forzatura, già denunciata con diffida a firma Marco Gasparinetti in nome proprio e quale mandatario di soggetti portatori sul territorio del Comune di Venezia di interessi civici, imprenditoriali e finanziari, indirizzata via PEC al Ministero dell’ambiente in data 29 settembre. Tale forzatura, anche a voler prescindere dagli aspetti procedurali che potranno essere fatti valere in via giurisdizionale, pregiudica in modo sostanziale la partecipazione del pubblico al procedimento privandolo della possibilità di ponderare adeguatamente la mole di documenti prodotta dall’autorità portuale e appare tanto più sorprendente se si considera che dall’8 agosto (data in cui il “Comitatone” ha deciso di sottoporre il progetto a VIA) al 17 settembre (data di pubblicazione dell’avviso al pubblico) sono trascorsi 40 giorni che avrebbero potuto essere utilmente impiegati per l’avvio della consultazione, se veramente l’opera presentava i caratteri di urgenza prospettati dall’Autorità Portuale. Quello che si presenta come soggetto aggiudicatore si è invece preso 40 giorni di tempo per finalizzare o ritoccare documenti che erano già pronti da tempo, come risulta dalle date dei medesimi (16 documenti sono datati maggio 2013 e 21 sono datati primo luglio 2014), lasciando soltanto 30 giorni ai soggetti interessati che pure vantano diritti soggettivi e interessi legittimi in relazione ai beni materiali e al patrimonio culturale che rischiano di essere compromessi dallo scavo di una nuova via acquea di accesso alla stazione marittima, erroneamente e ingannevolmente presentata come “adeguamento via acquea di accesso alla stazione marittima di Venezia”. Su tale aspetto, si rinvia alla citata diffida del 29 settembre e segnatamente agli argomenti esposti a pagina 9 della medesima.
In secondo luogo, i sottoscritti si riservano di produrre ulteriori e più ampie deduzioni sugli aspetti non coperti dalle presenti osservazioni urgenti, con le quali intendono principalmente denunciare l’omessa valutazione degli effetti diretti o indiretti della nuova via d’acqua sui beni materiali e sul patrimonio culturale che pure avrebbero dovuto essere considerati, a maggior ragione nel caso di una città come Venezia la cui unicità e fragilità sono riconosciute non solo dall’ordinamento giuridico italiano ma anche da strumenti di diritto internazionale che i sottoscritti si riservano di utilizzare in tutte le sedi, a tutela dei propri diritti e interessi legittimi.
- L’omessa valutazione degli effetti diretti o indiretti della nuova via d’acqua sui beni materiali e sul patrimonio culturale.
Tale omissione si pone in contrasto con il DLgs. 152/2006, articolo 24 comma 1 lettera b, che recepisce l’articolo 3 lettera c) della direttiva 2011/92/UE. La valutazione di impatto ambientale (VIA) è stata infatti introdotta nell’ordinamento giuridico italiano in attuazione di precisi obblighi derivanti dalla legislazione europea ed è attualmente disciplinata dalla direttiva 2011/92/UE. A norma dell’articolo 3 di tale direttiva, “la valutazione dell’impatto ambientale individua, descrive e valuta in modo appropriato gli effetti diretti e indiretti di un progetto sui seguenti fattori”:
- a) l’uomo, la fauna e la flora;
- b) il suolo, l’acqua, l’aria, il clima e il paesaggio;
- c) i beni materiali e il patrimonio culturale”.
Nel caso di un progetto di scavo a ridosso di una città dal patrimonio culturale inestimabile, ci si sarebbe potuti attendere un’attenzione particolare alla valutazione degli effetti di cui alla lettera c) che riguardano per l’appunto i “beni materiali” quali case, manufatti e monumenti che peraltro sono tutelati nel loro insieme quale patrimonio culturale e ambientale di rilevanza mondiale. Eppure, tale valutazione è assente nello studio di impatto ambientale presentato dall’Autorità Portuale. Tale macroscopica carenza, perché tale deve essere considerata rispetto agli obblighi di legge, è ancor più sorprendente se si considera che Venezia è stata edificata con tecniche di costruzione tipiche di un ambiente lagunare e quindi particolarmente sensibile ad ogni alterazione degli equilibri idrodinamici quali ad esempio l’interazione delle correnti in provenienza dalle bocche di porto e la velocità con cui le masse d’acqua premono sulle fondamenta delle case, ma è forse meno sorprendente qualora si consideri lo stato di dissesto idrogeologico in cui versa l’Italia intera, a dimostrazione della sua cronica incapacità di pianificare, prevenire o anche solo riconoscere i rischi legati al consumo dissennato del territorio, che tante catastrofi ha già provocato.
L’omissione qui prospettata trova conferma nella circostanza che gli effetti diretti o indiretti sui beni materiali (e sul patrimonio culturale) non sono nemmeno presi in considerazione nelle “matrici di valutazione” proposte al capitolo 8 dello “Studio di Impatto ambientale” (elaborato A, pp. 224 e seguenti). Lo studio si limita infatti ad affrontare gli aspetti relativi all’impatto visivo-paesaggistico (pag. 171) e all’inquinamento luminoso (p. 173) e trascura completamente quelli che invece sono gli aspetti più pregnanti in relazione alle caratteristiche peculiari di una città unica al mondo, costruita sull’acqua, le cui fondamenta poggiano su milioni di tronchi d’albero. Quanto all’elaborato B, curiosamente cita la nota n. 382 del 23 gennaio 1985 con cui la Soprintendenza per i beni ambientali e architettonici di Venezia ben sottolinea l’unicità di questo “ecosistema unitario” in cui lo stato di salute della laguna direttamente incide su quello della città e dei suoi manufatti, per poi trascurare completamente la tematica nella “descrizione dei potenziali impatti” (capitolo 5) come a suggerire (per omissione) che il rischio di impatto negativo sarà uguale a zero.
Essendo ormai tristemente noto come la nozione di “rischio zero” non appartenga al novero delle attività umane, e a quali drammatiche conseguenze possa portare la sottovalutazione dei rischi quando ancora se ne possono anticipare e prevenire gli impatti, sarebbe stato lecito attendersi ad una disamina approfondita dei rischi (remoti o concreti che siano, ma questa è per l’appunto la ragion d’essere di una valutazione di impatto) che potrebbero derivare dallo scavo di un canale lungo 5km, largo 100 metri e profondo 10,5 metri[1], in diretta comunicazione con i sestieri storici e con l’isola della Giudecca, nel momento in cui le masse d’acqua in provenienza dalla bocca di porto del Lido si incontreranno con quelle provenienti dalla bocca di porto di Malamocco, in conseguenza del nuovo scavo, e con velocità presumibilmente maggiore di quella attuale come emerge anche (in via puramente indiziaria) dai dati prodotti dall’autorità portuale: a pagina 46 dell’elaborato B, si afferma che : “l’area di influenza analizzata presenta condizioni idrodinamiche variabili” Il canale Malamocco-Marghera e il canale Vittorio Emanuele III si caratterizzano per profondità maggiori rispetto alle limitrofe aree lagunari, con correnti sostenute che possono raggiungere valori di poco inferiori ai 0,3 metri al secondo” da confrontare con gli 0,05 metri al secondo nella zona di spartiacque. Nel medesimo elaborato si sottolinea anche l’influenza del vento e citando uno studio del Magistrato alle acque si sottolinea come “persino un vento di 10km/h, se prolungato per 4-5 giorni, può produrre variazioni significative del campo di velocità con differenze locali.. del 300% rispetto a una condizione di quadratura imperturbata”.
In conseguenza del progettato scavo, i sestieri storici e la Giudecca rischiano dunque di essere sottoposti alla duplice pressione di masse d’acqua provenienti da due bocche di porto e, per quel che riguarda la massa d’acqua proveniente dalla bocca di Malamocco, ad una velocità di propagazione che non ha niente a vedere con le condizioni attuali, caratterizzate da “correnti molto modeste” (ibidem, pagina 46).
Tali aspetti sono solo indirettamente affrontati nello “studio morfologico” (datato maggio 2013) il cui unico intento sembra essere quello di sottacere o sottovalutare gli effetti diretti o indiretti (e mai citati) sulla città di Venezia, se non quando afferma (pagina 56) che:
“La successione delle velme previste in fregio al canale costituisce uno sbarramento che attraversa, dal Canale S. Leonardo Marghera alla Stazione Marittima l’intera zona di spartiacque fra i bacini di Lido e di Malamocco. Questa interruzione si fa sentire nelle fasi di flusso e riflusso della marea, costringendo la corrente ad aggirare l’ostacolo concentrandosi nel Canale S. Leonardo Marghera e all’imbocco del Canale della Giudecca”
e anche (a pagina 58) che:
“La zona del canale Contorta S. Angelo e delle velme limitrofe risulta essere la più sollecitata, data la vivacità del flusso e la sua variabilità in intensità e direzione sopra le velme e tra i varchi ».
Da queste ed altre affermazioni contenute nello studio morfologico, appare evidente che in assenza dei pesanti interventi di ingegneria (velme e barene artificiali) pomposamente definiti “riqualificazione delle aree limitrofe al canale”, gli effetti per la città sarebbero devastanti ed è in tale ottica che tali interventi vengono proposti: non già per “riqualificare” la laguna centrale con i sedimenti risultanti dallo scavo del canale ma per costringere la massa d’acqua artificialmente convogliata nel nuovo canale a “starsene buona” in un alveo altrettanto artificiale, per paura dei danni che questa rischia di arrecare e senza nessuno studio idoneo a provare che questo risultato verrà effettivamente conseguito. A questo proposito, ci si chiede peraltro a che titolo l’Autorità Portuale si proponga come soggetto aggiudicatore di lavori per i quali non ha competenza alcuna, sulla base della legislazione vigente, quali il complesso di interventi ripetutamente presentato alla stampa e all’opinione pubblica come “riqualificazione ambientale della laguna centrale”.
A tale proposito, i sottoscritti aderiscono all’opinione di tre autorevoli esperti, docenti all’Università di Padova e responsabili dell’aggiornamento del Piano morfologico per la Laguna di Venezia, la cui adozione risponde agli obblighi introdotti dalla Direttiva 2000/60/EC ed è soggetta a VAS (non ancora avviata), che a proposito dello scavo del Contorta hanno dichiarato quanto segue: “ora che tale progetto viene proposto con decisione, troviamo piuttosto sorprendente che le sommarie indagini idrodinamiche e morfodinamiche svolte a suo supporto non tengano conto del mutato assetto lagunare previsto nel Piano Morfologico, ormai precisamente delineato. Ovvero quel che stupisce non è che venga proposto l’escavo del Canale Contorta, ma piuttosto che non siano da tempo state promosse indagini per quantificare, dettagliatamente e nel contesto dell’aggiornato Piano Morfologico, i cambiamenti che la realizzazione del Progetto Contorta inevitabilmente porterebbe nel delicato assetto della zona centrale della Laguna” (Marco Marani, Stefano Lanzoni, Andrea Defina, opinione pubblicata dal Gazzettino nell’edizione dell’8 ottobre 2014).
In altri termini, l’approvazione del progetto di scavo del Canale Contorta dovrebbe sottostare alla Valutazione Ambientale Strategica sull’aggiornamento del Piano Morfologico anziché precederlo e pregiudicarne gli esiti (vanificando la natura stessa della VAS) in particolare ove si consideri che i parametri ambientali prescritti dalla direttiva 2000/60/EC diventeranno obbligatori a partire dal primo gennaio 2015 e che la Laguna di Venezia (classificata come “acque di transizione”) nella sua parte centrale è caratterizzata da situazioni di criticità a cui occorrerà porre rimedio, anziché aggravarle con lo scavo di un nuovo canale.
- Il problema dei sedimenti e la perdita di territorio lagunare
Fonte : Tabella 5.6. Stima quantitativi sedimenti movimentati e classe di appartenenza: volume totale 6.436.800 m³ di cui: Classe A 4.698.864 m³, Classe B 1.609.200 m³, Classe C 128.736 m³.
Con riferimento ai sedimenti che si vorrebbero utilizzare per la creazione della “barriera” artificiale di velme e barene, le fonti informative relative alle caratteristiche qualitative dei sedimenti e la tabella sopra riportata derivano da analisi eseguite dall’Autorità Portuale di Venezia, anziché da un istituto scientifico accreditato e indipendente, e fanno riferimento a carotaggi che non sono stati eseguiti nell’area direttamente interessata dal progetto, bensì in aree adiacenti al Canale Malamocco-Marghera. Ne consegue che tali basi informative non sono idonee ad esprimere valutazioni sui rischi per l’ambiente circostante dei previsti ingenti scavi di sedimenti e, tantomeno, ad acclarare l’idoneità qualitativa di tali sedimenti alla predisposizione di nuove velme/barene nelle aree contermini al nuovo Canale Contorta Sant’Angelo. L’Autorità Portuale medesima riconosce comunque che nei lavori di scavo verranno movimentati sedimenti di classe C (non utilizzabili per le opere di ingegneria sopra descritte) la cui quantità è stimata in 128.736 m³ e afferma quanto segue: “Per quanto riguarda la necessaria rimozione dei materiali, trasporto e conferimento a sito di recapito, i sedimenti classificati entro C potranno essere conferiti presso l’isola delle Tresse”. I sottoscritti esprimono la più netta contrarietà a tale ipotesi di conferimento, per i motivi che verranno esposti in apposita memoria aggiuntiva e che attengono fra l’altro alla tutela della pesca, dei posti di lavoro ad essa collegati e della salute umana che rischierebbe di essere a sua volta pregiudicata nel momento in cui le sostanze chimiche contenute in tali sedimenti (Arsenico, Cadmio, Cromo, Mercurio, Nichel, Piombo, Pesticidi organoclorurati PCB Idrocarburi) dovessero entrare nella catena alimentare in conseguenza di tracimazioni o incidenti di lavorazione, essendo oltretutto di dominio pubblico due circostanze non rassicuranti:
- Il fatto che gli argini dell’isola delle Tresse siano interessati da fenomeni di erosione (fonte: http://www.ilquotidianofvg.it/capitali-per-spostare-i-fanghi-tondo-sentito-dal-pm/)
- Il probabile raggiungimento dei suoi limiti di capienza (fonte: http://archivio.eddyburg.it/article/articleview/2407/0/177/ che rende comunque indispensabile, a parere degli scriventi, valutare con maggior precisione la quantità di sedimenti da trattare, la loro tipologia e le alternative ipotizzabili per il conferimento.
Infine, i sottoscritti nutrono dubbi sulla larghezza reale del nuovo canale, che nello studio morfologico viene ipotizzata in 120 metri mentre Nella Relazione Tecnica di progetto, al paragrafo 4, l’opera viene descritta in questi termini: “Il nuovo canale navigabile Contorta S. Angelo collegherà il canale Malamocco Marghera con il bacino di evoluzione di Marittima, avrà una lunghezza pari a circa 5 Km, una cunetta navigabile di larghezza pari a 100 m”. A tale proposito, giova ricordare come le condizioni di sicurezza prescritte dalla Capitaneria di Porto di Venezia (Art.13 dell’Ordinanza n.175/09 “Regolamento per il servizio marittimo e la sicurezza della navigazione nel Porto di Venezia”) sono le seguenti: “La larghezza dei convogli non deve mai essere maggiore della terza parte della larghezza minima dei canali da percorrere” e che molte delle navi da crociera attualmente in servizio hanno una larghezza pari o superiore a 40 metri, il che richiederebbe per l’appunto un canale di larghezza pari o superiore a 120 metri. Nel caso in cui qualcuno stia giocando con i numeri, giova ricordare come la sicurezza della navigazione sia un imperativo categorico che non deve essere sacrificato sull’altare di interessi economici, per quanto pervicaci essi siano.
I dubbi sulla larghezza reale del nuovo canale si riflettono anche su un aspetto ulteriore, che verrà qui soltanto accennato per sommi capi: quello delle zone di protezione speciale (ZPS) interessate dal progetto di scavo e della perdita di territorio lagunare che ne conseguirebbe. Secondo i documenti depositati dall’Autorità Portuale: “il previsto allargamento del canale Contorta porta ad una perdita netta di quasi 44 ettari di habitat 1150* “Lagune costiere” a carico del sito ZPS IT3250046 “Laguna di Venezia”. A quest’area va aggiunta quella corrispondente alla prevista realizzazione di velme in fregio e a protezione del canale Contorta S. Angelo che incide su una superficie di fondo lagunare pari a circa 126 ettari, anch’essi relativi all’habitat 1150* “Infine a tali aree va aggiunta la superficie interessata dagli interventi di sagomatura tra la gengiva del nuovo canale ed i bassifondi contigui, per una superficie pari a circa 26 ettari » a proposito delle quali si conclude che “In considerazione delle superfici interessate .. si è ritenuto di non poter escludere il verificarsi di effetti significativi negativi” ».
A prescindere dagli obblighi derivanti dalla legislazione europea applicabile, che verranno affrontati in separata sede, vale la pena di sottolineare le vette di umorismo involontario raggiunte dal soggetto aggiudicatore a pagina 82, laddove si afferma che : « Per quanto detto si ritiene che l’impatto derivante dalla perdita di territorio lagunare come habitat prioritario, causata dalla realizzazione delle nuove velme non debba essere considerato necessariamente un problema, ma, così come inquadrato nel progetto e con le dovute precauzioni operazionali, cautele progettuali ed azioni di monitoraggio e controllo, possa diventare una risorsa per l’area di progetto”.
Su tali aspetti i sottoscritti intendono ritornare con osservazioni ulteriori in forma di intervento « ad adiuvandum » delle osservazioni in corso di elaborazione da parte di altri soggetti interessati al progetto.
- La valutazione di Impatto Archeologico
I sottoscritti aderiscono alle osservazioni sulla VIArc (Valutazione di Impatto Archeologico) predisposte dai docenti Carlo Beltrame e Diego Colaon, che si allegano alla presente e ne costituiscono parte integrante.
- Conclusioni
In conclusione, i sottoscritti sono fermamente contrari allo scavo della nuova via d’acqua e, con riserva di approfondire gli altri aspetti qui accennati, ritengono che gli effetti del medesimo avrebbero richiesto una disamina meno superficiale di quella effettuata, considerato anche lo straordinario valore del patrimonio culturale racchiuso all’interno della Laguna di Venezia e il rischio di danni patrimoniali e morali che la nuova opera farebbe gravare sui singoli cittadini, imprenditori e investitori, oltre che sul “sistema Paese”. Nel caso specifico di Venezia, gli effetti diretti e indiretti della nuova opera rischiano infatti di portare pregiudizio grave e irreparabile ad un patrimonio culturale che, oltre ad essere tutelato dall’art. 9 della Costituzione italiana e dalla legislazione speciale per la salvaguardia di Venezia e della sua Laguna (leggi n° 171 del 1973 e n° 798 del 1984, inter alia) è anche riconosciuto come patrimonio culturale e ambientale di rilevanza mondiale (sito UNESCO) a norma della Convenzione internazionale del 16 novembre 1972, ratificata dall’Italia con legge n° 129 del 1977.
Per i motivi sopra esposti, e con riserva di produrre ulteriori osservazioni e deduzioni sugli aspetti non coperti dalla presente, i sottoscritti
CHIEDONO
alla Commissione VIA costituita presso il Ministero dell’Ambiente e della Tutela del Territorio di emettere parere NEGATIVO sul progetto preliminare denominato “Adeguamento via acquea di accesso alla stazione marittima di Venezia”, che in realtà non preconizza un adeguamento ma una nuova via acquea di accesso alla stazione marittima, in ragione della carenza di valutazione degli effetti diretti o indiretti sui beni materiali e sul patrimonio culturale di Venezia ad opera dell’Autorità Portuale e della carenza di legittimazione della medesima a proporsi come soggetto aggiudicatore di un progetto di “riqualificazione” ambientale della laguna centrale che in realtà si configura come mero tentativo di mitigazione dei danni creati dallo scavo del nuovo canale, nonché per i rischi legati alla movimentazione dei sedimenti che si vorrebbero conferire presso l’isola delle Tresse, per i danni potenziali all’ecosistema lagunare, per quelli che verrebbero inflitti ad un settore già duramente provato quale quello della pesca, che dà lavoro a più di 1.000 persone, e per gli altri motivi che verranno separatamente prospettati con osservazioni ulteriori e/o interventi ad adiuvandum delle osservazioni in corso di elaborazione da parte di altri soggetti interessati.
Venezia, 17 ottobre 2014
Firmato
In nome proprio e quale mandatario per delega di (in ordine alfabetico):
- Emanuela Amici (Venezia)
- Anna Antonelli (Roma)
- Gloria Barbone (Venezia)
- Lucia Bartoloni (Venezia)
- Stefano Barzizza (Venezia)
- Carla Bellenzier (Venezia)
- Carlo Beltrame (Venezia)
- Elisa Benato (Mira VE)
- Guido Benato (Mira VE)
- Erika Bianco (Venezia)
- Giovanni-Andrea Bizio Gradenigo (Venezia)
- Valentina Boccassini (Venezia)
- Anna Bolcato (Venezia)
- Aldo Bon (Venezia)
- Gigi Bon (Venezia)
- Matelda Bottoni (Venezia)
- Alessandro Bozzato (Venezia)
- Davide Bozzato (Venezia)
- Stefano Bravo (Venezia)
- Diego Callegaro (Spinea VE)
- Valentina Canniello (Venezia)
- Carla Capone (Lodi)
- Mariarosa Cerni (Venezia)
- Francesco Ceselin (Venezia)
- Roberta Chiarotto (Venezia)
- Flavio Cogo (Venezia)
- Simonetta Cordella (Venezia)
- Marina Cravin (Venezia)
- Lorena Culloca (Venezia)
- Giuliano Dalla Venezia (Martellago VE)
- Gianni Darai (Venezia)
- Mauro Dardi (Pistoia)
- Adriano De Vita (Venezia)
- Lorena Della Togna (Venezia)
- Fabio Doro (Venezia)
- Marialaura Durigato (Salò, BS)
- Ermanno Ervas (Venezia)
- Andrea Fasolo (Monfalcone GO)
- Daniela Filippini (Massa)
- Paolo Fornelli (Pavia)
- Sabrina Forti (Salzano VE)
- Monica Francesconi (Bologna)
- Matteo Freschi (Venezia)
- Nicoletta Frosini (Venezia)
- Marco Gasparinetti (Venezia)
- Sebastiano Giorgi (Venezia)
- Bruno Gorini (Venezia)
- Mario Heinz (Venezia)
- Barbara Kujawska (Venezia)
- Rosanna Ligi (Venezia)
- Giuliana Longo (Venezia)
- Massimiliano Longo (Venezia)
- Mauro Magnani (Mirano VE)
- Barbara Marengo (Venezia)
- Daniela Milani Vianello (Venezia)
- Matteo Mantovan (Venezia)
- Mara Marini (Colle di Val d’Elsa – Siena)
- Mario Martinotti (Brasile)
- Andrea Miglio (Milano)
- Giuseppe Mirisciotti (Venezia)
- Julia Nikitina (Venezia)
- Rita Nordio (Sottomarina, VE)
- Silvia Nordio (Venezia)
- Luigia Emilia Paleari (Arcore, Monza Brianza)
- Francesca Palermo-Patera (Milano)
- Saverio Pastor (Venezia)
- Giampietro Pizzo (Venezia)
- Bruno Politeo (Venezia)
- Claudia Proietto (Venezia)
- Francesco Rado (Venezia)
- Danilo Rosan (Venezia)
- Marilena Rossetto (Venezia)
- Tiziana Rossi (Savona)
- Francesca Santarella (Ravenna)
- Rita Sartori (Venezia)
- Veronica Scarpa (Venezia)
- Sabina Schiavuta (Venezia)
- Elisabetta Sciarra (Venezia)
- Vito Simi de Burgis
- Carla Sitran (Venezia)
- Nicola Tognon (Venezia)
- Alberto Toso Fei (Venezia)
- Marco Trevisan (Salzano VE)
- Guido Triantafillis (Venezia)
- Alice Veronese (Venezia)
- Dario Vianello (Venezia)
- Giovanni Battista Vianello (Venezia)
- Marco Vidal (Venezia)
- Sara Visman (Venezia)
- Selina Zampedri (Venezia)
- Gianni Zanatta (Mira VE)
- Nicolò Zanatta (Mira VE)
- Marco Zordan (Venezia)
- Pieralvise Zorzi (Venezia)
- Luciana Zorzin (Treviso)
[1] Secondo i dati forniti nella Relazione Tecnica di progetto, che peraltro appaiono sottostimati.
ALLEGATO
Osservazioni relative alla VIArch (Valutazione di Impatto Archeologico) redatta dallo Studio Associato Bettinardi-Cester e allegata al progetto di “Adeguamento via acquea di accesso alla Stazione Marittima di Venezia e riqualificazione delle aree limitrofe al canale Contorta Sant’Angelo” presentato dall’Autorità Portuale di Venezia.
- Come dichiarato nella sezione/paragrafo conclusivo dal medesimo professionista, che ha redatto lo studio di valutazione, il lavoro è puramente teorico, ossia basato su ricerche bibliografiche e analisi di foto aeree, e rimanda (solo come consiglio…) le “ricognizioni sul terreno” ad un eventuale approfondimento, dimenticando però che queste sono prescritte per legge. L’”esito delle ricognizioni volte all’osservazione dei terreni”, prescritto chiaramente dall’articolo 95 del Codice dei contratti e degli appalti pubblici DLgs 163/2006 (comma 1), nel caso di aree sommerse, come la Laguna, è stato giustamente interpretato dalle varie soprintendenze del MiBACT e della Regione Sicilia (gli esempi sono molti) come indagini condotte con strumentazione diagnostica e comunque sempre come ricognizioni visive subacquee. La legge prescrive che queste operazioni vengano condotte già nella fase preliminare e quindi che i risultati vengano presentati e commentati in quel documento che deve accompagnare i progetti preliminari delle opere pubbliche. Nelle eventuali altre fasi “preventive” (la uno e la due), se prescritte dalla soprintendenza, la stazione appaltante dovrà invece farsi carico di carotaggi, sondaggi, saggi archeologici e prospezioni geofisiche (fase uno) e scavi estensivi (fase due) (art. 96, c. 1).
In sostanza la VIArch in oggetto non è completa e quindi, a nostro parere, da invalidare perché non rispetta gli articoli di legge. Eventuali deroghe della Soprintendenza locale non possono quindi, a nostro parere, giustificare questa grave lacuna e possono configurarsi come un’azione del tutto arbitraria. Le indicazioni della legge d’altronde sono utili proprio perché prescritte nella fase preliminare del progetto al fine di prevedere il “rischio” archeologico e non possono prescindere da indagini dirette sul campo (e quindi dei fondali) perlomeno di tipo “superficiale”, ossia ricognizioni subacquee.
Va aggiunto che la natura stessa del progetto prevede operazioni di scavo del canale di tipo uniforme e con profondità piuttosto elevate. Non sono previsti margini di variazione progettuale per la creazione di “isole” di terreno non scavate/non scavabili, in quanto contenenti depositi archeologici. In altre parole, eventuali depositi archeologici (sicuramente presenti almeno per l’età medievale e moderna) devono per forza essere bonificati ed “eliminati”. Questo elemento, a nostro parere, richiede assolutamente indagini preliminari e un survey oculato, anche per determinare i costi di un’eventuale operazione archeologica.
- La presente VIArch non dà il sufficiente risalto ai gravissimi danni che lo scavo del Canale Malamocco-Marghera ha arrecato ad alcuni siti archeologici di grande interesse, in primis il monastero medievale di San Leonardo in Fossamala, letteralmente tagliato dall’opera e continuamente sottoposto all’erosione causata dalle onde prodotte dal passaggio delle navi.
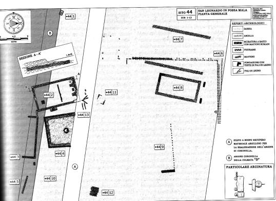
Pianta del monastero di San Leonardo in Fossa Mala immediatamente dopo lo scavo del canale Malamocco-Marghera (da E. Canal, 2013). Il canale (ad est) e il canaletto di servizio (ad ovest) impattarono pesantemente sul complesso monastico. L’erosione, negli ultimi anni, ha fatto scomparire tutta la parte centrale del complesso e ha aggredito pesantemente anche la parte occidentale (chiesa ecc.).
Altri siti sommersi di interesse archeologico, sottoposti a pesantissimi effetti erosivi, sono stati localizzati negli ultimi 20 anni nella zona di Fusina. La VIArch avrebbe dovuto sottolineare il rischio che gli stessi processi di impatto archeologico sull’opera si possano riproporre nell’area di scavo o nell’area di buffer zone del nuovo canale.
Va ricordato qui come la natura archeologica di questi siti sia estremamente a rischio in caso di aumento del moto ondoso e della forza delle correnti: si tratta di siti (sopratutto quelli più antichi) formati da banchi di argilla consolidata con pali in legno e laterizi e pietre spezzate. Sono depositi archeologici “fragili” che, se sottoposti a pressione di correnti, possono venire completamente erosi anche in tempi piuttosto brevi. La moderna archeologia e storiografia, recenti scavi e convegni internazionali hanno inoltre dimostrato come la storia della Laguna di Venezia e della città stessa si possa indagare e interpretare proprio grazie all’attenzione verso questo tipo di depositi.
- La VIArch è poco attenta alla buffer zone, ossia a quella fascia di 500 metri ai lati del canale che, venendo sottoposta ad erosione ad opera del modo ondoso provocato dal passaggio delle navi (aspetto che risulta ben evidente attraverso l’osservazione dell’attuale passaggio delle navi nel canale Malamocco-Marghera), potrebbe mettere in luce strutture archeologiche al momento sepolte con il rischio conseguente dell’innesco di quel processo di degrado attualmente ben visibile lungo il Malamocco-Marghera.
- La VIArch non considera minimamente che lo stesso progetto, inteso ad eliminare l’attuale canale Contorta, si configura come un’operazione di annullamento di una via d’acqua storica e quindi di un bene culturale, la cui frequentazione, come ben evidenziano peraltro paradossalmente dal capitolo storico-archivistico (a firma di Martina Minini), risale almeno al 1000 d.C. e il cui ruolo era di collegamento, a mezzo imbarcazioni, tra la terraferma e la città.
- Nessuno studio di archeologia preventiva potrà comunque dare garanzie sull’assenza di evidenze archeologiche sotto i sedimenti lagunari. Come dichiarato dalla stessa VIArch (p. 64), carotaggi effettuati in passato per indagini geologiche hanno riconosciuto la presenza di manufatti preistorici alla quota di ben 7 m s.l.m.m. Le stesse stratificazioni più comuni, di età medievale e moderna, sono – come si è detto – formate essenzialmente da depositi di argille e legni: la diagnostica di tali orizzonti antropici con metodologie remote è assolutamente poco efficacie. Presenze così effimere come quelle di origine preistorica, ma anche evidenze molto più consistenti, non possono essere riconosciute con certezza neppure dalle più sofisticate tecnologie quali il sub–bottom profiler o i magnetometri a protoni. Le operazioni di scavo, infatti, dovranno per forza prevedere anche una costante (e costosa sia in termini economici che di perdita di dati scientifici) assistenza da parte di archeologi la cui efficacia, però, sarà quasi nulla date le modalità di scavo. I canali lagunari, infatti, sono normalmente scavati a mezzo benna o a mezzo draga, intervenendo su depositi di sedimenti consistenti alcuni metri e posti, peraltro, al di sotto di un paio di metri di acqua. Con le scarse condizioni di visibilità che offrono queste metodiche di scavo l’assistenza archeologica e l’analisi autoptica dell’archeologo alle operazioni non garantiscono la conservazione dei depositi eventualmente intercettati. 25 anni di attività di tutela in Laguna da parte della Soprintendenza archeologica hanno infatti dimostrato i limiti della diagnostica sia tecnologica sia manuale sotto depositi sedimentari superiori al metro e la necessità comunque di un’assistenza alle operazioni di scavo che però, in questo caso, potrebbero rivelarsi ben poco efficaci per le difficoltà oggettive di controllo de visu del materiale scavato.
- Nella VIArch manca del tutto una valutazione organica dell’impatto economico e sociale (in termini di costi, di tempistica e di dati culturali) che comporterà la “bonifica” di quei siti archeologici posti lungo il canale e che interferranno con le lavorazioni.
- La VIArch, infine, è costruita in modo positivistico, ossia la valutazione è stata tutta giocata sulla possibilità di conoscere più siti archeologici (attraverso il loro scavo) grazie alla realizzazione dell’opera. Manca, invece, una valutazione dell’impatto complessivo sul patrimonio archeologico lagunare (che è ben lungi dall’essere inesauribile). Viene dato per assodato, invece, che l’opera non solo si debba fare ma che venga eseguita con le modalità di progetto senza possibilità di varianti.
Carlo Beltrame PhD
Università Ca’ Foscari Venezia
Docente dei corsi di:
Archeologia marittima e subacquea
Metodologie della ricerca archeologica
Archeologia preventiva
beltrame@unive.it
Diego Calaon PhD
Marie Skłodowska-Curie Fellow, IOF
Stanford University, Dept. of Anthropology
Ca’ Foscari University Venice, DAIS
dcalaon@stanford.edu

